Borelli Investment Company

Commercial, Industrial, Retail Real Estate in Silicon Valley

  • Home
  • About
    • People
      • Buddy Parsons – President
      • Tom Purtell – Chief Operating Officer
      • Ralph Borelli – Chairman
      • Lee Jatta – Vice President, Property Management
      • Jon D’Amico – Property Manager
      • Christopher Anderson – Broker
      • Patrick Bumb – Asset Manager
      • Caleb Scherer – Development, Acquisitions, Sales
      • Abigail Parsons – Property Manager
    • History
    • Privacy Policy
  • Services
    • Real Estate
      • Property Management
        • Association Management
      • Property Development
      • Property Repositioning
      • Land Development
      • Land Sales
      • Commercial Condo Development
      • Asset Management
      • Receiverships
      • Syndication
      • 1031 Exchange
    • For Brokers
    • For Tenants
  • Showcase
  • Property Search
    • All Properties
    • Office Space
    • Industrial
    • Retail
    • Apartments
    • Land
    • For Sale
  • Blog
  • Contact

Property Detail

Location:
53 Bonaventura Drive
Suite A
San Jose

Type:
Industrial Space

Square Feet:
2850

Date Available:
Jun 1, 2026

Price ($):
1.90 IG

CAM ($):
0.26

Buildout:
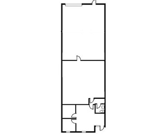
Reception area, 2 private offices, open office, restroom, warehouse with roll up door.

Floorplan:

Click here for larger floorplan

Contact:
Jon D'Amico
408-453-4700

Access:
Appointment Only See Jon

View Location Map

Download a Brochure
To view the brochure, you must have Adobe Acrobat Reader. Click on the Adobe icon to download it free.

Print Page

     

Recent Blog Posts

  • Eight Years in the Making: A Rezoning Journey Worth Remembering
  • 2022 Activity: Three Recent Closings!
  • 100% Chiropractic Is All In at Market Park San Jose
  • Closing Announcement: 921 Berryessa
  • Pizza My Heart Serves Up New Store at Market Park San Jose

FREE QUOTE

Get a Free Property Management Quote for your building.

Borelli Investment Company

2051 Junction Ave., Suite 100
San Jose, CA 95131
Phone: 408-453-4700
Fax: 408-453-5636

E-Mail: Contact Us

Connect

  • Email
  • Facebook
  • Instagram
  • LinkedIn
  • Phone
  • Twitter

Latest Blog Posts

  • Eight Years in the Making: A Rezoning Journey Worth Remembering
  • 2022 Activity: Three Recent Closings!
  • 100% Chiropractic Is All In at Market Park San Jose
  • Closing Announcement: 921 Berryessa

Partners & Clients

  • Bay 101 Technology Place
  • Fremont Business Park
  • Market Park San Jose
  • Monterey Motorsport Park
  • Northpoint Plaza Los Gatos
  • Onelin Capital Corporation
  • Salinas Business Park
  • SiliconX Construction
  • Solar Row at Winchester

Site Search

Copyright © 2026 · Borelli Investment Company · BRE#00754782