Location:
1010 El Camino Real
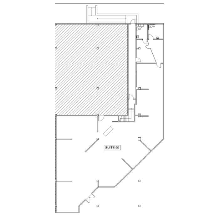
Suite 90
Menlo Park
Type:
Retail Space
Square Feet:
4533
Date Available:
Available Now
Buildout:
172 lineal feet of glass-lined storefront. Large open area with sectional display areas. Acoustic ceiling with lay-in lighting. Private office with private restroom. Signage above entry. 4 reserved parking spaces.
Comments:
Adjacent to Café Borrone and Kepler’s Books. Walking distance to Downtown Menlo Park amenities and CalTrain, parking onsite.
Floorplan:
Click here for larger floorplan
Contact:
Buddy Parsons
408-453-4700
Access:
Call for touring instructions
Download a Brochure
To view the brochure, you must have Adobe Acrobat Reader. Click on the Adobe icon to download it free.
![]()